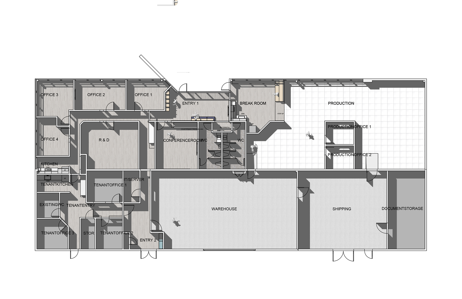
Measurlogic made the move from their rented, tenant space that they called home for over 10 years, across town to a dated 10,000 sqft building. The design process included gutting pieces of the original building, redoing the internal layout to better suit Measurlogic’s needs, facelifting everything including new flooring, wall treatments, bathrooms, and kitchen spaces. Other efforts such as furniture installations and overall layout, new internal & external signage design, new lighting, and new art areas were incorporated to give the space an updated and comfortable feel.
Back to Top